清流县凤凰城二期地下室建设项目规划设计变更规划公示
为贯彻落实《福建省实施〈中华人民共和国城乡规划法〉办法》,加强城乡规划管理,提高城乡规划审批的透明度,让人民真正做到了解城乡规划,参与城乡规划,遵守城乡规划,实现城乡规划管理工作的公开、公平、公正,现将清流县凤凰城二期地下室的规划设计变更规划公示,设计变更具体事项公示如下:
一、公示内容:
1.建设项目:清流县凤凰城二期地下室
2.公示内容:
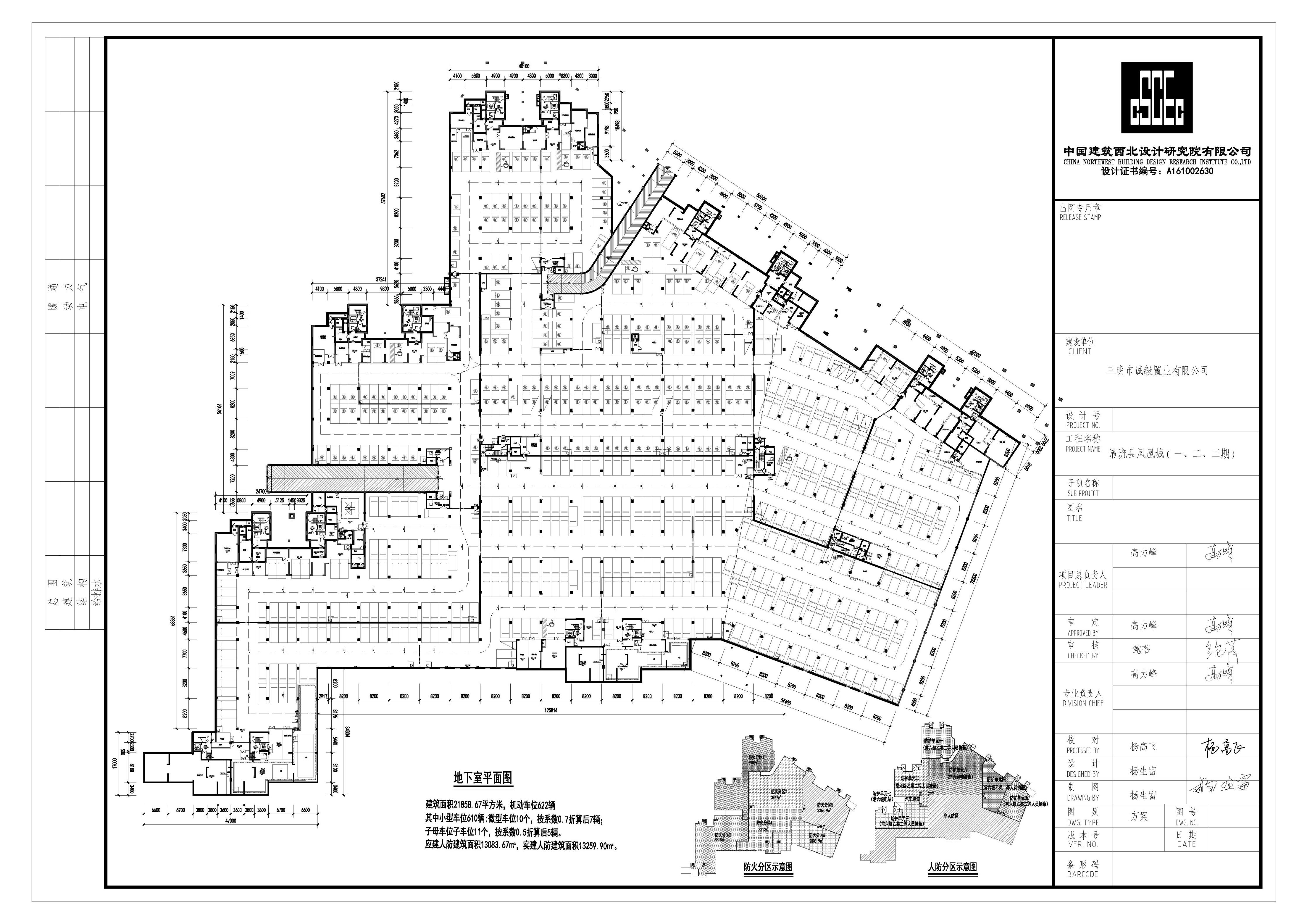
因项目现场地质原因,对于2020年1月3日通过的报批方案中的52945.09平方米地下室,更改为27726.59平方米,同时车位从2383个调整为1477个,调整方案已经通过2020年8月18日专家论证,满足2011年的土地出让规划条件书中的停车要求。(具体调整详见附图:原总平设计图、原地下室一层平面图、修改后总平设计图、修改后地下室一层平面图)。
二、市民权利:
对该项目有异议的单位和相关利害关系人,可在公示期限内将书面材料反馈到清流县自然资源局,逾期未提出意见的,视为放弃上述权利并对公示方案没有异议。
三、公示期限:
2021年1月4日—2021年1月14日
四、反馈方式:
1.来信来访。
地址:清流县龙津镇水南街378号,永顺办公综合楼;
2.单位:清流县自然资源局;邮编:365300
3.联系电话:0598-5323058
附件:
1.原总平设计图
2.原地下室一层平面图
3.修改后总平设计图
4.修改后地下室一层平面图
清流县自然资源局
2021年1月4日
扫一扫在手机上查看当前页面






闽公网安备号: