清流LNG气化站工程项目《建设工程规划许可》的批前公示
经清流中燃城市燃气发展有限公司申请,我局现将清流LNG气化站工程项目方案的具体内容公示如下。在公示期间,有关单位或个人对该项目审批有任何意见或建议的,可在公示期内以书面等法定形式向我局反映,逾期未提出的,视为放弃权利。
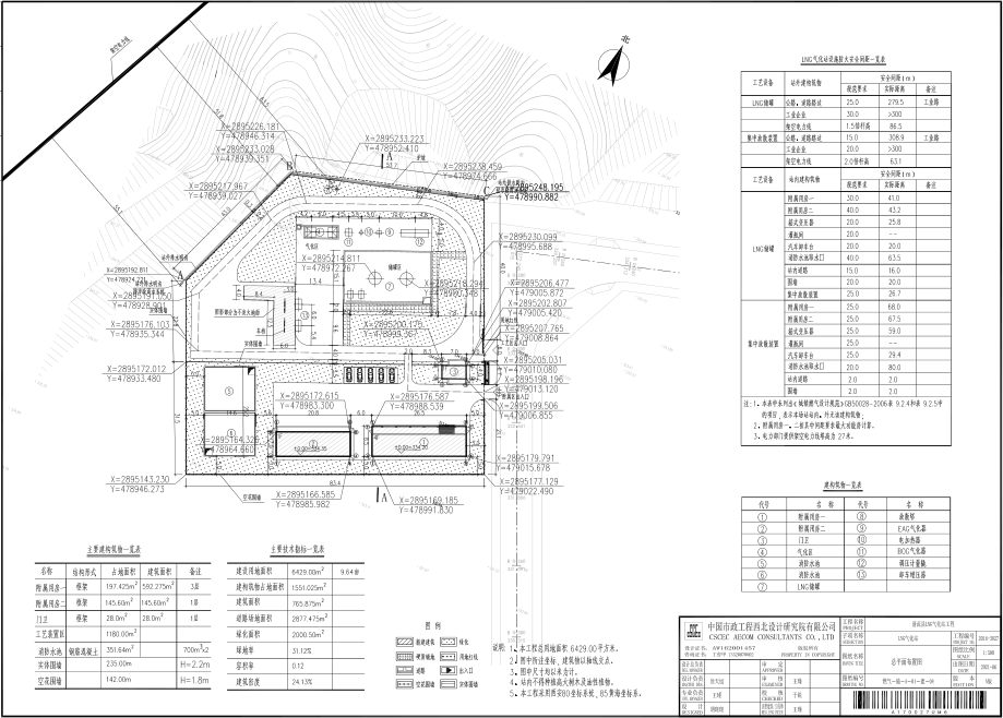
一、公示的主要内容
该项目占地面积为6429平方米,建构筑物占地面积为1551.025平方米,总建筑面积765.875平方米。容积率0.12,建筑密度24.13%,绿地率31.12%,项目地址:清流县龙津镇城南村十里铺。
二、公示期限
2021年6月29日-2021年7月6日
三、反馈方式
1.来信来访
地址:清流县龙津镇水南街378号,永顺办公综合楼
单位:清流县自然资源局
邮编:365300
2.联系电话
0598-5323058
附图:区位图、总平面图、鸟瞰图。
清流县自然资源局
2021年6月29日
扫一扫在手机上查看当前页面





闽公网安备号: