关于福建省展化化工有限公司二期扩建项目——控制室,机修车间,9#厂房,12#仓库《建设工程规划许可》的批前公示
经福建省展化化工有限公司申请,我局现将福建省展化化工有限公司二期扩建项目——控制室,机修车间,9#厂房,12#仓库方案的具体内容公示如下。在公示期间,有关单位或个人对该项目审批有任何意见或建议的,可在公示期内以书面等法定形式向我局反映,逾期未提出的,视为放弃权利。
一、公示的主要内容
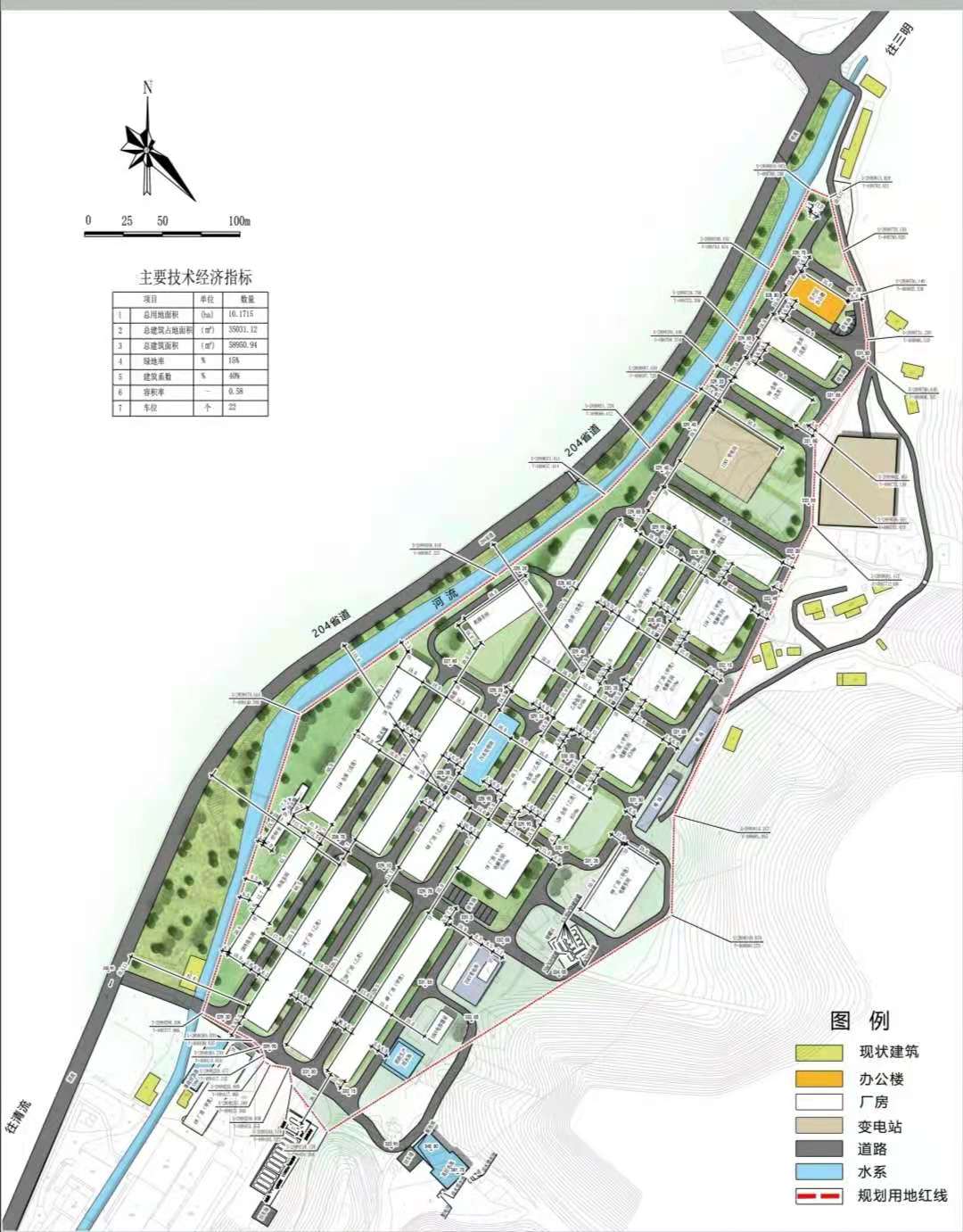
该项目总用地面积101715.42平方米,其中本期用地面积3103平方米,总建筑面积为3103平方米。容积率0.6,建筑密度34.2%。新建控制室,机修车间,9#厂房,12#仓库。项目地址:清流县龙津镇大路口村。
二、公示期限
2021年8月12日-2021年8月18日
三、反馈方式
1.来信来访
地址:清流县龙津镇水南街378号,永顺办公综合楼
单位:清流县自然资源局
邮编:365300
2.联系电话
0598-5323058
附图:区位图、总平面图、鸟瞰图。
清流县自然资源局
2021年8月12日
扫一扫在手机上查看当前页面








闽公网安备号: