关于开元射箭场及综合楼建设项目《建设工程规划许可证》的批前公示
经福建开元体育产业发展有限公司申请,我局现将关于开元射箭场及综合楼建设项目的具体内容公示如下。在公示期间,有关单位或个人对该项目审批有任何意见或建议的,可在公示期内以书面等法定形式向我局反映,逾期未提出的,视为放弃权利。
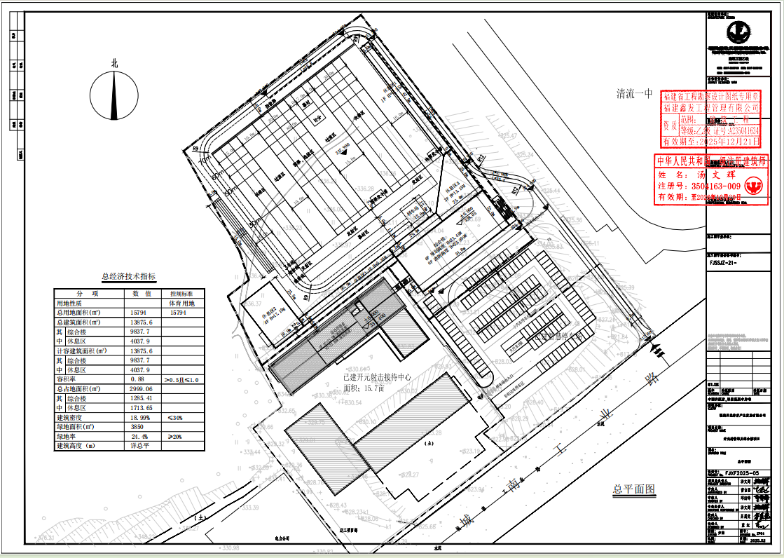
一、公示的主要内容
该项目总用地面积15794平方米,总建筑面积13875.6平方米,占地面积2999.06平方米。项目地址:清流县龙津镇城南村
二、公示期限
2025年3月7日-2025年3月13日
三、反馈方式
1.来信来访
地址:清流县龙津镇水南街378号,永顺办公综合楼
单位:清流县自然资源局
邮编:365300
2.联系电话
0598-5323058
附图:区位图、总平图。
清流县自然资源局
2025年3月7日
射箭场总平图
扫一扫在手机上查看当前页面




闽公网安备号: